產品介紹

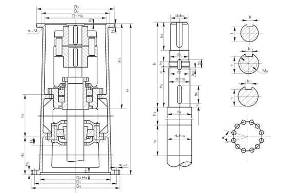
SJ、LSJ型雙支點機架主要參數及尺寸
機架代號
H0
H1
H3
H4
H5
H6
H7
D1
D2
D3
n1-M
D4
D5
D6
a°
n2-φ
SJ,LSJ55AB
450
402
58
22
24
6
6
270
310
305
340
6-M10
8-M16
325
400
435
30
12-φ14
SJ,LSJ65AB
450
487
58
22
24
6
5
6
316
360
400
8-M12
(8-M16)
350
420
460
30
12-φ18
SJ,LSJ70AB
450
487
528
22
24
6
5
6
316(320)
320
360
400
8-M12
8-M16
350
420
460
30
12-φ18
SJ,LSJ80AB
450
545
60
25
28
6
5
8
345
360
390
410
430
460
8-M16
8-M20
380
455
495
30
12-φ23
SJ,LSJ90A
600
569
69
25
40
7
8
400
450
490
12-M16
(12-M20)
430
510
555
30
12-φ23
SJ,LSJ100AB
600
685
61
30
40
9
5
10
455(460)
470
520
580
12-M20
480
560
600
22.5
16-φ23
SJ,LSJ110A
600
685
61
38
40
11
10
520
590
650
12-M20
560
650
700
22.5
16-φ27
SJ,LSJ120A
600
685
61
38
40
11
10
520
590
650
12-M20
560
650
700
22.5
16-φ27
SJ,LSJ130AB
650
761
85
40
45
11
9
10
680
800
880
12-M30
720
810
880
18
20-φ27
SJ,LSJ140A
650
761
85
40
45
11
9
12
680
800
880
12-M30
720
810
880
18
20-φ27
SJ,LSJ150AB
650
761
76
50
50
14
10
12
820
940
1020
16-M30
720
810
880
18
16-φ33
SJ,LSJ160AB
650
780
81
50
50
14
10
12
820
940
1020
16-M30
840
940
1020
22.5
16-φ33
SJ,LSJ180AB
650
910
83
50
50
14
10
12
960
1080
1160
20-M30
970
1080
1160
18
20-φ33
型號
攪拌軸軸端尺寸
SJ型
LSJ型
h(A/B)
h0
h1
h2
h3
h4
h5
h6
h7
d0
d1
d2
M0
d3(h9)
d4
b
b2
b2
t
t1
t2
H
H2
重量(kg)
H
H2
重量(kg)
SJ,LSJ55AB
307/302
80
118
15
24
300
120
40
3
55
57
57
M60×2
60
65
16
8
8
49
56
56
1070
312
170
1220
462
186
SJ,LSJ65AB
373
95
143
18
32
275
135
50
3
65
72
72
M75×2
72
80
18
10
10
58
59
70
1140
307
261
1290
457
277
SJ,LSJ70AB
373/367
95
143
18
32
275
135
50
3
70
72
72
M75×2
75
80
20
10
10
62.5
69
70
1140
307
261
12980
457
277
SJ,LSJ80AB
422/385
95
163
18
32
250
139
60
3
80
81
82
M85×2
85
90
22
10
10
71
79
80
1230
354
372
1380
504
388
SJ,LSJ90A
436
115
168
20
36
380
162
60
3
90
91
92
M95×2
95
110
25
12
12
81
89
90
1400
363
427
1550
513
447
SJ,LSJ100AB
532/510
135
178
24
42
360
182
60
3
100
110
112
M115×2
115
125
28
14
14
90
109
109.5
1510
350
515
1710
550
542
SJ,LSJ110A
489
145
178
24
42
380
182
60
3
110
111
112
M115×2
115
125
28
14
14
100
109
109.5
1510
350
621
1710
550
642
SJ,LSJ120A
489
145
178
24
42
380
182
60
3
120
122
122
N125×2
115
125
32
14
14
109
119
119.5
1510
350
641
1710
550
662
SJ,LSJ130AB
537/545
205
208
28
46
370
200
70
3
130
135
137
M140×2
140
150
32
14
14
119
132
134.5
1610
374
994
1810
574
1021
SJ,LSJ140A
537
205
208
28
48
370
200
70
3
130
135
137
M140×2
140
150
32
14
14
119
132
134.5
1610
374
994
1810
574
1021
SJ,LSJ150AB
根據減速機型號而定
220
208
32
52
370
200
70
3
150
155
156
M160×3
160
170
36
16
16
138
152
154
1660
410
1050
1860
610
1110
SJ,LSJ160AB
220
227
32
52
340
215
80
3
160
165
166
M170×3
170
180
40
16
16
147
182
164
1660
410
1060
1860
610
1120
SJ,LSJ180AB
290
242
36
58
310
230
90
3
180
185
186
M190×3
190
200
45
18
18
165
180
182
1710
402
1220
1920
602
1260
注:圖示所注“h”僅與本樣本BLD、LC-Ⅱ、DC-Ⅱ系列減速機相配,如選用其他型號或其他廠家減速機,“h”需另行計算。增高后的LSJ型機架其下部空間高度可容納205、206或207型雙端面機械密封。

SJ、LSJ型雙支點機架主要參數及尺寸
| 機架代號 | H0 | H1 | H3 | H4 | H5 | H6 | H7 | D1 | D2 | D3 | n1-M | D4 | D5 | D6 | a° | n2-φ |
| SJ,LSJ55AB | 450 | 402 | 58 | 22 | 24 | 6 | 6 | 270 | 310 305 |
340 | 6-M10 8-M16 |
325 | 400 | 435 | 30 | 12-φ14 |
| SJ,LSJ65AB | 450 | 487 | 58 | 22 | 24 | 6 5 |
6 | 316 | 360 | 400 | 8-M12 (8-M16) |
350 | 420 | 460 | 30 | 12-φ18 |
| SJ,LSJ70AB | 450 | 487 | 528 | 22 | 24 | 6 5 |
6 | 316(320) 320 |
360 | 400 | 8-M12 8-M16 |
350 | 420 | 460 | 30 | 12-φ18 |
| SJ,LSJ80AB | 450 | 545 | 60 | 25 | 28 | 6 5 |
8 | 345 360 |
390 410 |
430 460 |
8-M16 8-M20 |
380 | 455 | 495 | 30 | 12-φ23 |
| SJ,LSJ90A | 600 | 569 | 69 | 25 | 40 | 7 | 8 | 400 | 450 | 490 | 12-M16 (12-M20) |
430 | 510 | 555 | 30 | 12-φ23 |
| SJ,LSJ100AB | 600 | 685 | 61 | 30 | 40 | 9 5 |
10 | 455(460) 470 |
520 | 580 | 12-M20 | 480 | 560 | 600 | 22.5 | 16-φ23 |
| SJ,LSJ110A | 600 | 685 | 61 | 38 | 40 | 11 | 10 | 520 | 590 | 650 | 12-M20 | 560 | 650 | 700 | 22.5 | 16-φ27 |
| SJ,LSJ120A | 600 | 685 | 61 | 38 | 40 | 11 | 10 | 520 | 590 | 650 | 12-M20 | 560 | 650 | 700 | 22.5 | 16-φ27 |
| SJ,LSJ130AB | 650 | 761 | 85 | 40 | 45 | 11 9 |
10 | 680 | 800 | 880 | 12-M30 | 720 | 810 | 880 | 18 | 20-φ27 |
| SJ,LSJ140A | 650 | 761 | 85 | 40 | 45 | 11 9 |
12 | 680 | 800 | 880 | 12-M30 | 720 | 810 | 880 | 18 | 20-φ27 |
| SJ,LSJ150AB | 650 | 761 | 76 | 50 | 50 | 14 10 |
12 | 820 | 940 | 1020 | 16-M30 | 720 | 810 | 880 | 18 | 16-φ33 |
| SJ,LSJ160AB | 650 | 780 | 81 | 50 | 50 | 14 10 |
12 | 820 | 940 | 1020 | 16-M30 | 840 | 940 | 1020 | 22.5 | 16-φ33 |
| SJ,LSJ180AB | 650 | 910 | 83 | 50 | 50 | 14 10 |
12 | 960 | 1080 | 1160 | 20-M30 | 970 | 1080 | 1160 | 18 | 20-φ33 |
| 型號 | 攪拌軸軸端尺寸 | SJ型 | LSJ型 | ||||||||||||||||||||||||
| h(A/B) | h0 | h1 | h2 | h3 | h4 | h5 | h6 | h7 | d0 | d1 | d2 | M0 | d3(h9) | d4 | b | b2 | b2 | t | t1 | t2 | H | H2 | 重量(kg) | H | H2 | 重量(kg) | |
| SJ,LSJ55AB | 307/302 | 80 | 118 | 15 | 24 | 300 | 120 | 40 | 3 | 55 | 57 | 57 | M60×2 | 60 | 65 | 16 | 8 | 8 | 49 | 56 | 56 | 1070 | 312 | 170 | 1220 | 462 | 186 |
| SJ,LSJ65AB | 373 | 95 | 143 | 18 | 32 | 275 | 135 | 50 | 3 | 65 | 72 | 72 | M75×2 | 72 | 80 | 18 | 10 | 10 | 58 | 59 | 70 | 1140 | 307 | 261 | 1290 | 457 | 277 |
| SJ,LSJ70AB | 373/367 | 95 | 143 | 18 | 32 | 275 | 135 | 50 | 3 | 70 | 72 | 72 | M75×2 | 75 | 80 | 20 | 10 | 10 | 62.5 | 69 | 70 | 1140 | 307 | 261 | 12980 | 457 | 277 |
| SJ,LSJ80AB | 422/385 | 95 | 163 | 18 | 32 | 250 | 139 | 60 | 3 | 80 | 81 | 82 | M85×2 | 85 | 90 | 22 | 10 | 10 | 71 | 79 | 80 | 1230 | 354 | 372 | 1380 | 504 | 388 |
| SJ,LSJ90A | 436 | 115 | 168 | 20 | 36 | 380 | 162 | 60 | 3 | 90 | 91 | 92 | M95×2 | 95 | 110 | 25 | 12 | 12 | 81 | 89 | 90 | 1400 | 363 | 427 | 1550 | 513 | 447 |
| SJ,LSJ100AB | 532/510 | 135 | 178 | 24 | 42 | 360 | 182 | 60 | 3 | 100 | 110 | 112 | M115×2 | 115 | 125 | 28 | 14 | 14 | 90 | 109 | 109.5 | 1510 | 350 | 515 | 1710 | 550 | 542 |
| SJ,LSJ110A | 489 | 145 | 178 | 24 | 42 | 380 | 182 | 60 | 3 | 110 | 111 | 112 | M115×2 | 115 | 125 | 28 | 14 | 14 | 100 | 109 | 109.5 | 1510 | 350 | 621 | 1710 | 550 | 642 |
| SJ,LSJ120A | 489 | 145 | 178 | 24 | 42 | 380 | 182 | 60 | 3 | 120 | 122 | 122 | N125×2 | 115 | 125 | 32 | 14 | 14 | 109 | 119 | 119.5 | 1510 | 350 | 641 | 1710 | 550 | 662 |
| SJ,LSJ130AB | 537/545 | 205 | 208 | 28 | 46 | 370 | 200 | 70 | 3 | 130 | 135 | 137 | M140×2 | 140 | 150 | 32 | 14 | 14 | 119 | 132 | 134.5 | 1610 | 374 | 994 | 1810 | 574 | 1021 |
| SJ,LSJ140A | 537 | 205 | 208 | 28 | 48 | 370 | 200 | 70 |
3 |
130 | 135 | 137 | M140×2 | 140 | 150 | 32 | 14 | 14 | 119 | 132 | 134.5 | 1610 | 374 | 994 | 1810 | 574 | 1021 |
| SJ,LSJ150AB | 根據減速機型號而定 | 220 | 208 | 32 | 52 | 370 | 200 | 70 | 3 | 150 | 155 | 156 | M160×3 | 160 | 170 | 36 | 16 | 16 | 138 | 152 | 154 | 1660 | 410 | 1050 | 1860 | 610 | 1110 |
| SJ,LSJ160AB | 220 | 227 | 32 | 52 | 340 | 215 | 80 | 3 | 160 | 165 | 166 | M170×3 | 170 | 180 | 40 | 16 | 16 | 147 | 182 | 164 | 1660 | 410 | 1060 | 1860 | 610 | 1120 | |
| SJ,LSJ180AB | 290 | 242 | 36 | 58 | 310 | 230 | 90 | 3 | 180 | 185 | 186 | M190×3 | 190 | 200 | 45 | 18 | 18 | 165 | 180 | 182 | 1710 | 402 | 1220 | 1920 | 602 | 1260 | |
注:圖示所注“h”僅與本樣本BLD、LC-Ⅱ、DC-Ⅱ系列減速機相配,如選用其他型號或其他廠家減速機,“h”需另行計算。增高后的LSJ型機架其下部空間高度可容納205、206或207型雙端面機械密封。

a>